FindestNow
Dodaj nieruchomość
PLN
Zaloguj się
Na sprzedaż Mieszkania

2 pokoje do przerobienia na 3 | widok na zieleń

Murawa - Poznań

450.000 zł

2 pokóje
1 łazienka
10+ piętro
Cena
Cena (PLN) : 450.000 zł
Opłata administracyjna (PLN) : 1.020 PLN
Cechy
Pokój : 2
Łazienka : 1
Wiek budynku : 21+
Numer piętra : 10+
Inne szczegóły
Wyposażenie : Tak
Rodzaj ogrzewania : C.O. Z SIECI MIEJSKIEJ
Typ kuchni : Oddzielna
Materiał budowlany : Wielka Płyta
Dostępne od : 2026-03-31

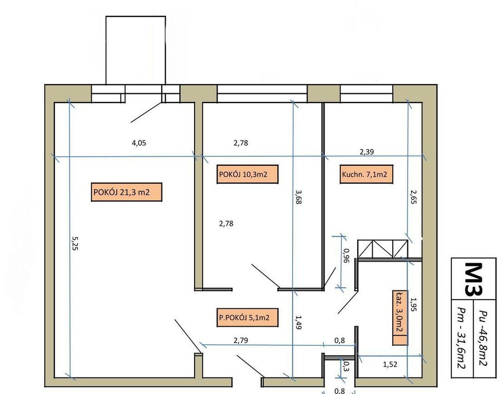
Na sprzedaż przestronne mieszkanie 2-pokojowe o powierzchni 47 m², położone na wysokim 12. piętrze w zadbanym, ocieplonym bloku z windą przy ul. Murawa na Winogradach. Lokal posiada funkcjonalny układ z oddzielną kuchnią i dużym potencjałem aranżacyjnym – układ pozwala na wydzielenie trzeciego pokoju z aneksem kuchennym, co stanowi ciekawą opcję zarówno dla rodziny, jak i dla inwestora. Mieszkanie jest zadbane, jednak nowy właściciel z pewnością doceni możliwość stopniowego urządzenia go według własnej wizji. Cena: 450 000 zł (w cenie piwnica ok. 2,5 m²) Forma własności: Spółdzielcze własnościowe z uregulowanymi gruntami – możliwość założenia księgi wieczystej i zakupu na kredyt Klientom kupującym gwarantujemy bezpłatną weryfikację zdolności kredytowej, dodatkowe zniżki na kredyty hipoteczne ze względu na stałą współpracę z doradcą kredytowym oraz zniżki na usługi notarialne. KONTAKT: +48 734 731 714 Rozkład pomieszczeń: Salon z wyjściem na balkon Pokój Kuchnia – oddzielna Łazienka Przedpokój Piwnica (ok. 2,5 m²) Ekspozycja okien: Wschodnia – przyjemne poranne światło i panoramiczny widok po horyzont Piętro: 12/16 Czynsz: 1 020 zł/miesiąc Dodatkowe informacje techniczne: Budynek z wielkiej płyty, ocieplony, okna PCV. W mieszkaniu wymieniono rozdzielnię elektryczną oraz piony wodno-kanalizacyjne – ważny atut dla osób planujących remont. Okolica: Ulica Murawa to spokojna, dobrze skomunikowana część Winogradów z bogatą infrastrukturą w zasięgu ręki. W pobliżu znajdują się sklepy, szkoły, przedszkola oraz przychodnie. Dzięki bliskości ul. Połabskiej komunikacja miejska zapewnia szybki dojazd do centrum Poznania. Okolica obfituje w tereny zielone i place zabaw, co czyni ją idealnym miejscem zarówno dla rodzin z dziećmi, jak i osób ceniących spokój i bliskość natury. Zadzwoń i umów się na prezentację! Aleksander Gut Doradca ds. Nieruchomości Kom.: +48 734 731 714 E-mail: a.gut@azestates.pl Więcej ofert na stronie: azestates.pl Niniejsza informacja nie stanowi oferty w rozumieniu Kodeksu Cywilnego. Dokładamy wszelkich starań, aby informacje dotyczące oferowanych obiektów były możliwie dokładne, kompletne i aktualne. Ze względu jednak na fakt, iż informacje te pochodzą od osób trzecich i nie zawsze dają się zweryfikować, firma Violino Agencja Koncertowa Sp z o.o. nie ponosi odpowiedzialności za ich dokładność. Marka AZEstates jest własnością spółki Violino Agencja Koncertowa Sp z o.o., która zastrzega sobie prawo do zmiany treści ofert bez wcześniejszego powiadomienia. AZEstates współpracuje z zaufanymi partnerami biznesowymi w zakresie nieruchomości oraz doradztwa inwestycyjnego, aby zapewnić najwyższy standard usług. Niniejsza wiadomość jest przeznaczona wyłącznie dla jej adresata i może zawierać informacje poufne. Jeśli nie jesteś jej odbiorcą, prosimy o usunięcie wiadomości i poinformowanie nadawcy. Przesyłając wiadomość na nasz adres e-mail, wyrażasz zgodę na przetwarzanie danych osobowych zgodnie z ustawą o ochronie danych osobowych oraz polityką prywatności spółki Violino Agencja Koncertowa Sp z o.o. Twoje dane będą przetwarzane wyłącznie w celu kontaktu zwrotnego i odpowiedzi na zapytanie. Oferta wysłana z programu dla biur nieruchomości ASARI CRM (asaricrm.com)

  • Klimatyzacja
  • Zmywarka
  • Zamrażarka
  • Piekarnik
  • Lodówka
  • Kuchenka
  • Pralka
  • Płyta indukcyjna
  • Wbudowana kuchnia
  • Duża szafa
  • Balkon
  • Telefon
  • Mikrofalówka
  • Suszarka na pranie
  • Pościel
  • Suszarka bębnowa
  • Umeblowane (pełne)
  • Umeblowane (częściowe)
  • Nieumeblowane
  • Kuchnia połączona z jadalnią
  • Oddzielna garderoba
  • Wysoki sufit
  • Tapety
  • Drzwi stalowe
  • Płyta gipsowo-kartonowa
  • Laminat
  • Drzwi panelowe
  • Parkiet
  • Farba satynowa
  • Podłoga ceramiczna
  • Szatnia
  • Aneks kuchenny
  • Kuchnia bez okna
  • Kuchnia z oknem
  • Kuchnia otwarta
  • Kuchnia oddzielna
  • Internet
  • Inteligentny dom
  • Światłowód
  • Telewizja kablowa
  • Telewizja satelitarna
  • Wi-Fi
  • Instalacja gazowa
  • Instalacja elektryczna
  • Kanalizacja
  • Klimatyzacja
  • Wentylacja
  • Winda
  • Telefoniczna
  • Prąd z sieci
  • Woda miejska
  • Kanalizacja miejska
  • Gaz z sieci
  • Pralka
  • Z kabiną prysznicową
  • Łazienka główna
  • Łazienka Hilton
  • Łazienka włoska
  • Jacuzzi
  • Wanna
  • Sauna
  • Gorąca woda
  • Podgrzewacz wody
  • C.O. z sieci miejskiej
  • C.O. własne
  • C.O. gazowe
  • C.O. elektryczne
  • C.O. olejowe
  • C.O. węglowe
  • Pompa ciepła
  • Kominek
  • Piec
  • Paliwo stałe
  • Ekologiczne
  • Inne
  • Sieć miejska
  • Piec gazowy
  • Piec elektryczny
  • Bojler
  • Solar
  • Geotermalne
  • Pompa ciepła
  • Piec węglowy/drewno
  • Inne
  • Na zachód
  • Na wschód
  • Na południe
  • Na północ
  • Alarm
  • Ochrona
  • Recepcja
  • System monitoringu
  • Winda
  • Domofon
  • Ogród własny
  • Ogród - wspólny
  • Hydrofory
  • Generator
  • Zbiornik na wodę
  • Kominek
  • Izolacja termiczna
  • Izolacja akustyczna
  • Generator
  • Podwójne szyby
  • Stolarka drewniana
  • Stolarka aluminiowa
  • Stolarka PCV
  • Siding
  • Osiedle chronione
  • Drzwi antywłamaniowe
  • Kamery
  • Kraty
  • Rolety
  • Okna połaciowe
  • Okna antywłamaniowe
  • Okna z roletami
  • Garaż
  • Otwarty parking
  • Ścieżka spacerowa
  • Plac zabaw dla dzieci
  • Prywatna siłowna
  • Sklep
  • Ogród
  • Boisko do koszykówki
  • Kort tenisowy
  • Boisko do siatkówki
  • Boisko do piłki nożnej
  • Prywatny basen
  • Łaźnia
  • Dostęp dla niepełnosprawnych
  • Teren zamknięty
  • Rowerownia
  • Piwnica
  • Strych
  • Komórka
  • Loggia
  • Suszarnia
  • Stanowisko garażowe
  • Stanowisko parkingowe
  • Wiata
  • Parking strzeżony
  • Ogródek
  • Pralnia
  • Nasadzenia
  • Stare drzewa
  • Krzewy i drzewa
  • Krzewy
  • Stare fundamenty
  • Budynek do rozbiórki
  • Oczko wodne
  • Autostrada
  • Blisko ulicy
  • Autobus morski
  • Przy brzegu morza
  • Blisko morza
  • Zapełnione
  • Blisko szpitala
  • Lotnisko
  • Blisko metra
  • Blisko szkoły
  • Autobus
  • Blisko targu
  • Kolejka linowa
  • Tramwaj
  • Stacja kolejowa
  • Trolejbus
  • Prom
  • <5 Km do centrum
  • Las w pobliżu
  • Park w pobliżu
  • Rzeka w pobliżu
  • Jezioro w pobliżu
  • Centrum handlowe w pobliżu
  • Przedszkole w pobliżu
  • Restauracja w pobliżu
  • Z widokiem na morze
  • Widok na jezioro
  • Widok na basen
  • Widok na miasto
  • Widok na zielone pole

Kontakt Violino Agencja Koncertowa Sp z o.o.

734 731 714 *** a.g***@*** a.gut@azestates.pl
Lokalizacja nieruchomości