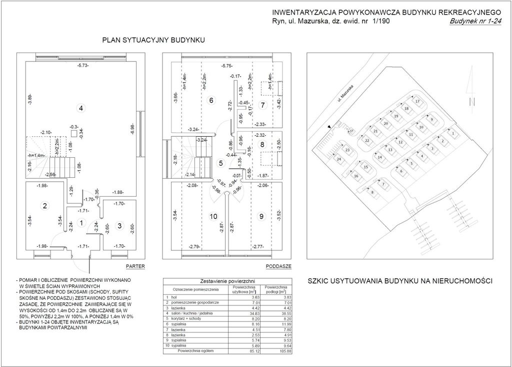
PODANA CENA OFERTOWA JEST CENĄ BRUTTO ( uwzględniony 23% VAT ) NIE POBIERAMY PROWIZJI OD KUPUJĄCEGO!!! DOMY WYKOŃCZONE "POD KLUCZ" DOM nr 17 ( 3 linia zabudowy ), powierzchnia działki: 315,95 m Oferujemy do sprzedaży domy położone bezpośrednio nad Jeziorem Ryńskim w Rynie. Osiedle składa się z 24 domów, które rozmieszczone są po 8 domów w trzech rzędach. Do każdego domu przynależny jest taras 26,50 m2. Powierzchnia działek 219-591 m2 Do każdego domu przewidziane jest miejsce postojowe na Łódź w prywatnej Marinie. Do Mariny przygotowany zostanie slip do wodowania skuterów i małych łodzi. W bezpośrednim sąsiedztwie cała infrastruktura miejska i turystyczna Rynu: m.in. sklepy, restauracje, deptaki, plaża Standard wykonania i wykończenia: I. Konstrukcja budynków • Fundamenty – płyta betonowa żelbetowa • Ściany zewnętrzne – cegła silikatowa + beton • Ściany wewnątrzlokalowe – parter cegła silikatowa, piętro drewno + wełna w środku • Stropy drewniane z wygłuszeniem z wełny • Dach – więźba dachowa pokryta dachówką ceramiczną, ocieplenie z wełny mineralnej o grubości 30 cm II. Elewacja • Styropian 18 cm obłożony cegłą klinkierową o grubości ok. 1 cm. III. Budynki • Ściany tynkowane tynkiem gipsowym - parter • Ściany z płyty OSB i karton gips - piętro • Posadzki anhydrytowe o grubości ok. 7 cm – parter • Podłogi z płyty OSB – piętro • Schody wewnętrzne - tylko konstrukcja stalowa • Ogrzewanie podłogowe - parter • Doprowadzenie aluminiowej instalacji elektrycznej zakończonej skrzynką bezpiecznikową umieszczoną w pomieszczeniu technicznym, przydział mocy 5 kW • Instalacja elektryczna w pomieszczeniach zakończona gniazdami i przełącznikami oraz wypusty kabli oświetleniowych • Instalacja fotowoltaiczna • Doprowadzenie instalacji teletechnicznej (internet światłowodowy) • Rozprowadzenie instalacji kanalizacji sanitarnej z rur PVC • Rozprowadzenie instalacji zimnej i ciepłej wody z rur z polietylenu – wodomierz w pomieszczeniu technicznym • Ciepła woda oraz c.o. – piec elektryczny wraz ze sterownikiem temperatury i zasobnikiem na ciepłą wodę • Stolarka okienna PCV, parter drzwi tarasowe z aluminium • Wentylacja grawitacyjna • Klimatyzacja • Tarasy – kostka betonowa + pergola z otwieranym dachem (istnieje możliwość oszklenia tarasów za dodatkową opłatą) • Oświetlenie ścian budynku • Oświetlenie tarasu (LED) IV. Media • Wodociąg – sieć miejska • Kanalizacja sanitarna – sieć miejska + przepompownia ścieków • Prąd - PGE V. Zagospodarowanie terenu • Ciągi piesze oraz droga dojazdowa do budynku – kostka betonowa • Pozostałe nieutwardzone części terenu – trawa oraz w części drzewka • Brama wjazdowa i furtka wejściowa otwierane na pilota • Naziemne miejsca utwardzone • Teren pod rekreację od strony ulicy • Miejsca parkingowe dla gości przy wjeździe • Budynek wartowni przy wjeździe • Utwardzony plac pod kontenery na odpady przy budynku wartowni • Skrzynki z licznikami elektrycznymi przy ogrodzeniu • Oświetlenie • Hydranty p.poż. • Kanalizacja teletechniczna • Plaża piaszczysta VI. Przystań dla łodzi 1. Wyposażenie: • słupki do poboru prądu i wody • oświetlenie 2. Konstrukcja: • Pomosty pływające betonowe – minimalna głębokość do cumowania jachtów 120 cm ___________RODO : HOMEPLUS Nieruchomości z siedzibą w (05-250) Radzyminie, Al. Jana Pawła II 1B, informuje Państwa, iż podanie danych jest dobrowolne, ale niezbędne w celu świadczenia usług pośrednictwa w obrocie nieruchomościami przez nasze biuro. Posiadają Państwo prawo dostępu do treści swoich danych i ich sprostowania, usunięcia, ograniczenia przetwarzania, prawo do przenoszenia danych, prawo do cofnięcia zgody w dowolnym momencie bez wpływu na zgodność z prawem przetwarzania. - Dane mogą być udostępniane przez HOMEPLUS podmiotom upoważnionym do uzyskania informacji na podstawie przepisów ustawy z 21.08.1997 r. o gospodarce nieruchomościami (Dz.U. z 2016 r. poz. 2147 ze zm.). - Podane dane będą przetwarzane na podstawie art. 6 ust. 1 pkt a) i zgodnie z treścią ogólnego rozporządzenia o ochronie danych. - Administratorem danych jest HOME PLUS – Ireneusz Kurzyński oraz HOME PLUS - Małgorzata Kosińska z siedzibą w Radzyminie , Al. Jana Pawła II 1B, e-mail: oferty@homeplus.pl. Przekazane przez Państwa osobowe będą przechowywane przez okres niezbędny do wykonania umowy oraz dodatkowo przez okres wynikający z przepisów o przedawnieniu roszczeń – w celu ewentualnej ochrony prawnej administratora. Nie później niż rok po upływie tego okresu dane osobowe zostaną trwale usunięte z systemów informatycznych, a dane papierowe – trwale zniszczone. Mają Państwo prawo wniesienia skargi do Prezesa Urzędu Ochrony Danych Osobowych (PUODO), gdy uznacie Państwo, iż przetwarzanie podanych przez Państwa danych osobowych narusza przepisy ogólnego rozporządzenia o ochronie danych osobowych z dnia 27 kwietnia 2016 r. (RODO). --------------------- UWAGA!*Powyższe informacje nie stanowią oferty w rozumieniu Kodeksu Cywilnego. HOMEPLUS Nieruchomości nie ponosi odpowiedzialności za dokładność, kompletność i aktualność prezentowanych obiektów, staramy się jednak, aby informacje dotyczące ofert były możliwie najbardziej kompletne i aktualne. Oferta wysłana z programu dla biur nieruchomości ASARI CRM (asaricrm.com)