FindestNow
Dodaj nieruchomość
PLN
Zaloguj się
Na sprzedaż Mieszkania

0%, widok na Szrenicę, w pobliżu parku DINO

Muzealna - Szklarska Poręba

702.200 zł

3 pokóje
1 piętro
1 years
Cena
Cena (PLN) : 702.200 zł
Depozyt (PLN) : 702.200 PLN
Cechy
Pokój : 3
Wiek budynku : 1
Ile pięter ma budynek : 2
Numer piętra : 1
Status balkonu : Tak
Typ balkonu : Otwarty Balkon
Inne szczegóły
Rodzaj ogrzewania : C.O. Z SIECI MIEJSKIEJ
Zabezpieczenia budynku : Tak
Dostępne od : 2026-02-23

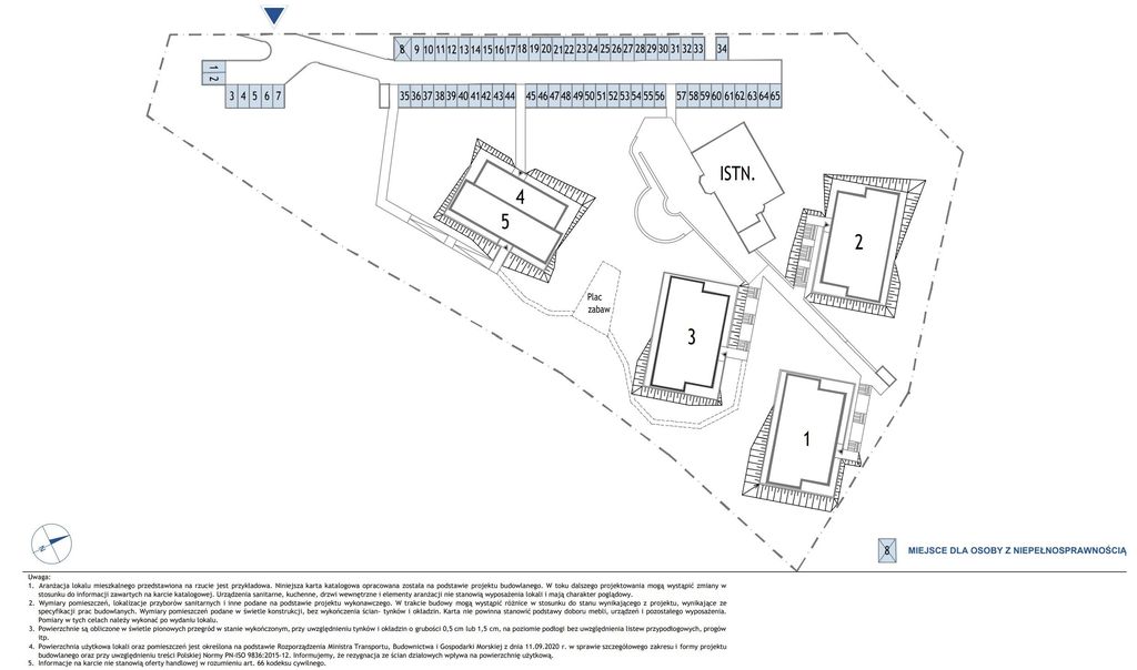
0% prowizji, inwestycja zrealizowana Budynek 2, lokal nr 2.3.2, balkon: 7,88 m pełne zestawienie dostępnych apartamentów na stronie brokera pod linkiem: http://homeplus.pl/,1466/78/OI Link do filmów na YouTube: https://www.youtube.com/playlist?list=PL7HCvn0P1dZddYwsLJWS6Gl1tSplMiRL2 Kameralna inwestycja, łącząca nowoczesne budownictwo z tradycyjnym górskim klimatem. Zlokalizowana w zielonej, cichej okolicy z widokiem na Szrenicę. Główne założenie realizowanej inwestycji to stworzenie miejsca wypoczynku i obcowania z naturą. To idealne miejsce dla miłośników przyrody ceniących sobie spokój, bliskość gór i lasów. Inwestycja będzie składać się z pięciu górskich domków, nawiązujących wizualnie do tradycyjnej architektury w tym rejonie Polski. Budynki zostaną wykończone naturalnymi materiałami, a spadzisty dach pokryty czerwonym wykończeniem doda całości niepowtarzanego klimatu. Przestronne tarasy oraz balkony z widokiem na góry, to przestrzeń, w której zaznasz odpoczynku, relaksu i zapomnisz o codziennych troskach. Dla komfortu i bezpieczeństwa zainstalowane zostaną inteligentne zamki do drzwi, którymi można sterować za pomocą smartfona. Inwestycja składa się z 59 mieszkań, o powierzchni od 25 m2 do 57 m2. / 45 mieszkań (VAT 8%) i 14 apartamentów turystycznych (VAT 23%) /, o powierzchni od 25 m2 do 57 m2. Klimatyczne budynki będą miały trzy kondygnację i zostaną wybudowane na różnych wysokościach terenu, utrzymując inwestycję w górskim klimacie. Do wyboru mieszkania o zróżnicowanej wystawie na wszystkie strony świata. Na terenie działki wyodrębnimy strefę parkingową do zakupienia dla przyszłych właścicieli. Najmłodsi goście spędzą czas na placu zabaw i widokiem na piękne krajobrazy. Inwestycja położona jest w bliskim sąsiedztwie górskich lasów z panoramą Karkonoszy. Od złotego widoku dzieli nas 20 minut spacerem. Miłośnicy przyrody docenią okolicę, która oferuję zachwycające szlaki górskie, malownicze widoki i trasy rowerowe. Ilość ścieżek spacerowych oraz punktów rozpoczynających dłuższe górskie wędrówki to szeroki wachlarz wyborów dla samotnych spacerów i wypadów z rodziną. W sąsiedztwie górski klimat i natura została połączona z parkiem edukacji i rozrywki dla osób w różnym wieku – DINO PARK. Mnóstwo atrakcji jakie ofertuje to miejsce i niepowtarzalny klimat w jaki jest wpisane, sprawią że każdy znajdzie tu coś dla siebie i spędzi niezapomniane chwile z rodziną. ___________RODO : HOMEPLUS Nieruchomości z siedzibą w (05-250) Radzyminie, Al. Jana Pawła II 1B, informuje Państwa, iż podanie danych jest dobrowolne, ale niezbędne w celu świadczenia usług pośrednictwa w obrocie nieruchomościami przez nasze biuro. Posiadają Państwo prawo dostępu do treści swoich danych i ich sprostowania, usunięcia, ograniczenia przetwarzania, prawo do przenoszenia danych, prawo do cofnięcia zgody w dowolnym momencie bez wpływu na zgodność z prawem przetwarzania. - Dane mogą być udostępniane przez HOMEPLUS podmiotom upoważnionym do uzyskania informacji na podstawie przepisów ustawy z 21.08.1997 r. o gospodarce nieruchomościami (Dz.U. z 2016 r. poz. 2147 ze zm.). - Podane dane będą przetwarzane na podstawie art. 6 ust. 1 pkt a) i zgodnie z treścią ogólnego rozporządzenia o ochronie danych. - Administratorem danych jest HOME PLUS – Ireneusz Kurzyński oraz HOME PLUS - Małgorzata Kosińska z siedzibą w Radzyminie , Al. Jana Pawła II 1B, e-mail: oferty@homeplus.pl. Przekazane przez Państwa osobowe będą przechowywane przez okres niezbędny do wykonania umowy oraz dodatkowo przez okres wynikający z przepisów o przedawnieniu roszczeń – w celu ewentualnej ochrony prawnej administratora. Nie później niż rok po upływie tego okresu dane osobowe zostaną trwale usunięte z systemów informatycznych, a dane papierowe – trwale zniszczone. Mają Państwo prawo wniesienia skargi do Prezesa Urzędu Ochrony Danych Osobowych (PUODO), gdy uznacie Państwo, iż przetwarzanie podanych przez Państwa danych osobowych narusza przepisy ogólnego rozporządzenia o ochronie danych osobowych z dnia 27 kwietnia 2016 r. (RODO). --------------------- UWAGA!*Powyższe informacje nie stanowią oferty w rozumieniu Kodeksu Cywilnego. HOMEPLUS Nieruchomości nie ponosi odpowiedzialności za dokładność, kompletność i aktualność prezentowanych obiektów, staramy się jednak, aby informacje dotyczące ofert były możliwie najbardziej kompletne i aktualne. Oferta wysłana z programu dla biur nieruchomości ASARI CRM (asaricrm.com)

  • Klimatyzacja
  • Zmywarka
  • Zamrażarka
  • Piekarnik
  • Lodówka
  • Kuchenka
  • Pralka
  • Płyta indukcyjna
  • Wbudowana kuchnia
  • Duża szafa
  • Balkon
  • Telefon
  • Mikrofalówka
  • Suszarka na pranie
  • Pościel
  • Suszarka bębnowa
  • Kuchnia połączona z jadalnią
  • Oddzielna garderoba
  • Wysoki sufit
  • Tapety
  • Drzwi stalowe
  • Płyta gipsowo-kartonowa
  • Laminat
  • Drzwi panelowe
  • Parkiet
  • Farba satynowa
  • Podłoga ceramiczna
  • Szatnia
  • Internet
  • Inteligentny dom
  • Światłowód
  • Telewizja kablowa
  • Telewizja satelitarna
  • Wi-Fi
  • Pralka
  • Z kabiną prysznicową
  • Łazienka główna
  • Łazienka Hilton
  • Łazienka włoska
  • Jacuzzi
  • Wanna
  • Sauna
  • Gorąca woda
  • Podgrzewacz wody
  • Na zachód
  • Na wschód
  • Na południe
  • Na północ
  • Alarm
  • Ochrona
  • Recepcja
  • System monitoringu
  • Winda
  • Domofon
  • Ogród własny
  • Ogród - wspólny
  • Hydrofory
  • Generator
  • Zbiornik na wodę
  • Kominek
  • Izolacja termiczna
  • Izolacja akustyczna
  • Generator
  • Podwójne szyby
  • Stolarka drewniana
  • Stolarka aluminiowa
  • Stolarka PCV
  • Siding
  • Osiedle chronione
  • Garaż
  • Otwarty parking
  • Ścieżka spacerowa
  • Plac zabaw dla dzieci
  • Prywatna siłowna
  • Sklep
  • Ogród
  • Boisko do koszykówki
  • Kort tenisowy
  • Boisko do siatkówki
  • Boisko do piłki nożnej
  • Prywatny basen
  • Łaźnia
  • Dostęp dla niepełnosprawnych
  • Teren zamknięty
  • Rowerownia
  • Autostrada
  • Blisko ulicy
  • Autobus morski
  • Przy brzegu morza
  • Blisko morza
  • Zapełnione
  • Blisko szpitala
  • Lotnisko
  • Blisko metra
  • Blisko szkoły
  • Autobus
  • Blisko targu
  • Kolejka linowa
  • Tramwaj
  • Stacja kolejowa
  • Trolejbus
  • Prom
  • <5 Km do centrum
  • Z widokiem na morze
  • Widok na jezioro
  • Widok na basen
  • Widok na miasto
  • Widok na zielone pole

Kontakt HOMEPLUS Nieruchomości ( Ireneusz Kurzynski )

608 068 700 *** ire***@*** ireneusz.kurzynski@homeplus.pl
Lokalizacja nieruchomości