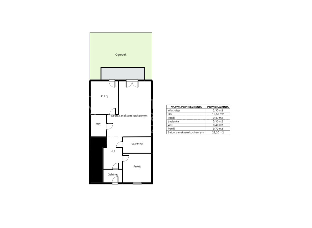
Biuro Partnerzy Nieruchomości ma przyjemność przedstawić Państwu 3 pokojowe mieszkanie o powierzchni 70,3 m2 wraz z poddaszem o powierzchni użytkowej 38,8 m2 zlokalizowane na nowo powstałej inwestycji w miejscowości Jasionka. Mieszkanie znajduje się na 1 piętrze zabudowy szeregowej dwulokalowej wybudowanej w 2025 roku. Termin oddania inwestycji - II kwartał 2026 UKŁAD MIESZKANIA: PIĘTRO: - wiatrołap - klatka schodowa - pokój - gabinet - łazienka ( wykończona wraz z armaturą) - pokój - salon z aneksem kuchennym - WC + pralnia (wykończone z armaturą) - balkon PODDASZE: - powierzchnia użytkowa - 38,8 m2 Mieszkanie w stanie deweloperskim z wykonanymi gładziami gipsowymi (również na poddaszu), co znacząco obniża koszty i skraca czas wykończenia. SZCZEGÓŁY NIERUCHOMOŚCI: - ogrzewanie połogowe po całości nieruchomości - 2 miejsca postojowe w cenie - mieszkanie oddawane w stanie deweloperskim - poddasze wykończone w stanie deweloperskim (wraz z gładziami) - wydzielona kotłownia z zasobnikiem wody na poddaszu ATUTY INWESTYCJI: - zamontowana fotowoltaika wraz z panelami - przygotowana instalacja pod klimatyzację - 2 miejsca postojowe - ogrzewanie podłogowe na całości - wykończone łazienki - brak części wspólnej, osobne wejście do mieszkania z zewnątrz budynku - energooszczędne, niskie koszty utrzymania LOKALIZACJA zapewnia ciszę i spokój z dala od zgiełku miejskiego, w sąsiedztwie domów jednorodzinnych, jednocześnie z szybkim dojazdem do centrum miasta, jak również do strefy ekonomicznej Jasionka. Przy zakupie nieruchomości z rynku pierwotnego, nie płacą Państwo prowizji ani podatku PCC. Zapraszamy do kontaktu i prezentacji nieruchomości ! Niniejsze ogłoszenie nie stanowi oferty handlowej w rozumieniu art. 66 §1 Kodeksu Cywilnego oraz innych właściwych przepisów prawnych, a dane w nim zawarte mają jedynie charakter informacyjny. Oferta wysłana z programu dla biur nieruchomości ASARI CRM (asaricrm.com)